Turning Design into Buildable Precision
At Upstream Fullvision LLC (UF), we know that accurate shop drawings are the backbone of successful construction. Our Detailed Shop Drawing Service bridges the gap between creative design and precise execution, ensuring every measurement, material, and installation detail is clearly defined—minimizing errors and keeping projects on track.
See More
What We Offer
High-Precision Construction Drawings
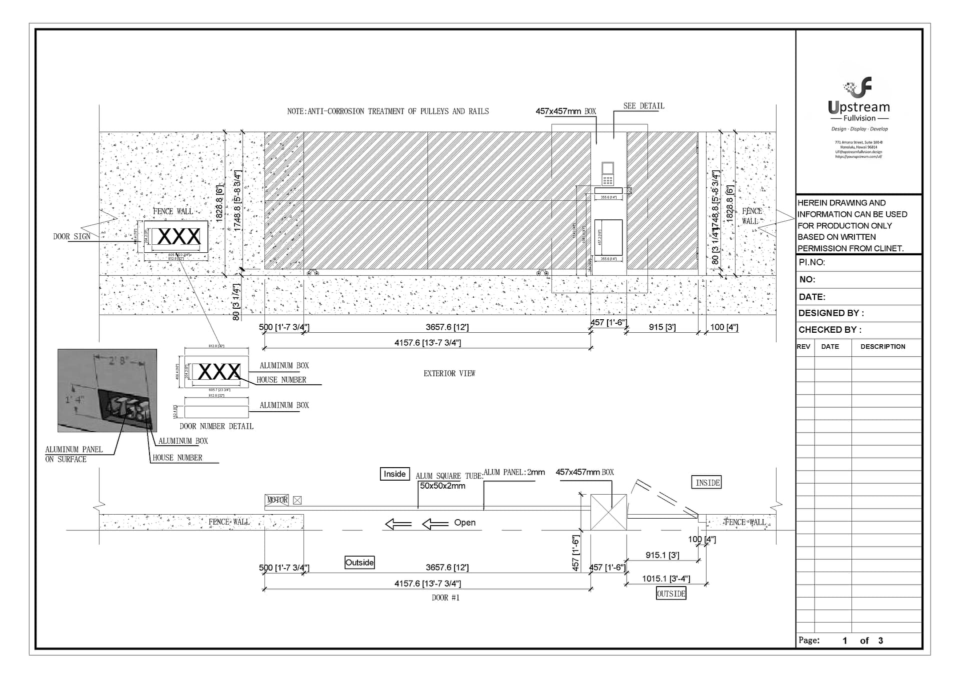
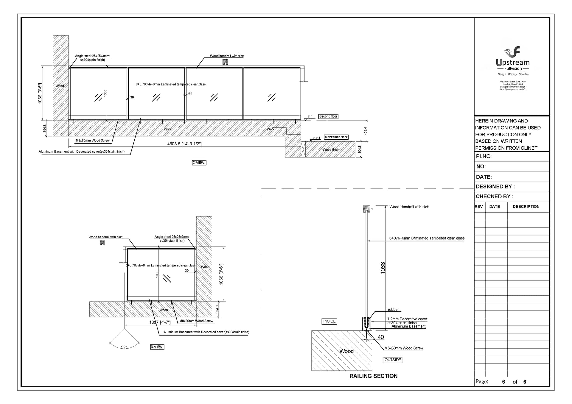
– Our experienced drafters transform design concepts into highly detailed technical drawings. Every element—from structural components to finishes—is fully documented to guide contractors through accurate execution.
Coordination with Architects & Engineers
– UF acts as a vital communication bridge between designers, architects, engineers, and construction teams. We ensure all drawings meet design intent, comply with regulatory standards, and align with engineering requirements.
Material & Product Specification Integration
– We incorporate exact material and product specifications directly into the shop drawings, ensuring consistency between design, procurement, and construction. This reduces discrepancies and avoids costly change orders.
Clear Installation Guidelines
– For each project, our shop drawings provide clear installation notes and section details, ensuring that builders, subcontractors, and inspectors all work from the same precise set of plans.
Review & Revision Support
– We work closely with clients and project managers to review, refine, and finalize every drawing. Our proactive revision process ensures all updates—whether from clients, designers, or regulatory agencies—are incorporated quickly and accurately.
Why Detailed Shop Drawings Matter
Build with Confidence
– Precise drawings ensure contractors understand every detail before work begins.
Minimize Errors
– Clear, standardized documents reduce miscommunication and prevent costly rework.
Enhance Approvals
– Detailed technical clarity accelerates the permitting and inspection process.
Stay on Budget
– Accurate drawings help control material orders, timelines, and labor costs.
See Our Work in Action– Explore how our shop drawings supported these projects:
Hawaii Kai Luxury Residence
– Shop drawings ensured seamless coordination between luxury design and precision construction. See More…
Waikiki Ramen Shop
– Custom millwork and kitchen layout were meticulously detailed to meet both design and health code. See More…
Aiea Multi-Family Home
– Every structural and interior element was carefully drawn to balance functionality and cost control. See More…
From Vision to Blueprint to Reality
Let UF’s detailed shop drawings bring clarity and precision to your next project. Contact us today to learn more.

























